藤阪元町JINパーキング

軽自動車8500円から小型9800円までの月額料金です。(消費税別)

この看板が目印です。

出来立ての綺麗な舗装の駐車場です。

幹線道路に面しているので出し入れしやすいです。

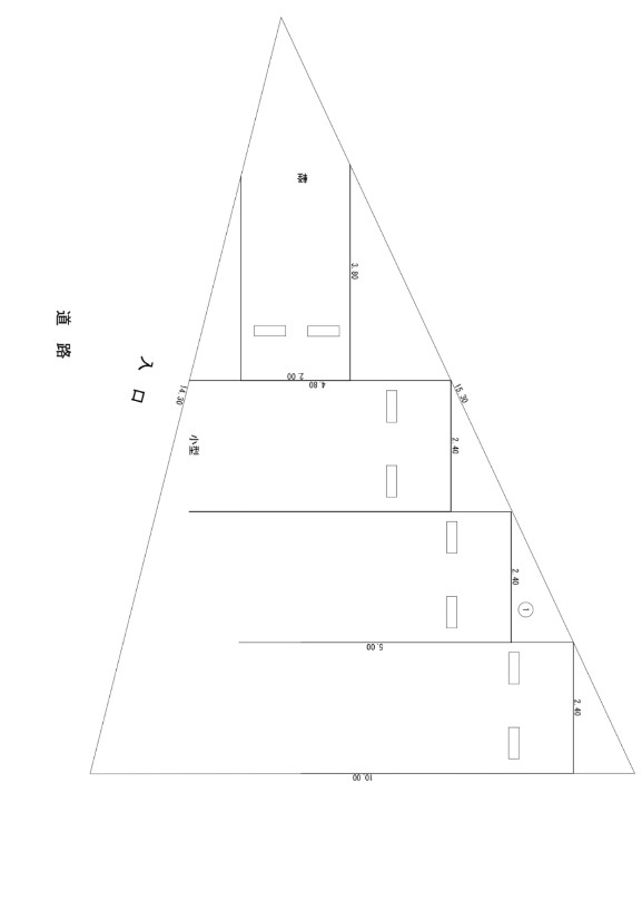
当社使用枠です。

周辺地図

右に曲がると、JR学研都市線藤阪駅まで、徒歩10分以内です。

お向かいに、大阪ガスの藤阪ガスセンターが有ります。
有限会社リフォミック・ジャパン

軽自動車8500円から小型9800円までの月額料金です。(消費税別)

この看板が目印です。

出来立ての綺麗な舗装の駐車場です。

幹線道路に面しているので出し入れしやすいです。

当社使用枠です。

周辺地図

右に曲がると、JR学研都市線藤阪駅まで、徒歩10分以内です。

お向かいに、大阪ガスの藤阪ガスセンターが有ります。
代表TEL:050-1549-8808